|
|
| 佐久市 不動産物件情報:分譲地・土地・中古住宅・アパート・テナント・貸事務所 |
 |
・600坪超の森に佇む本格フィンランドログハウスです、「ピザ窯×BBQハウス(ミニログ)×森のブランコ」”泊まれる遊び場”
・丸太組構法による本格ログハウスで、これまでにメンテナンスや適切な維持管理が行われており、手入れの行き届いた状態なので、即利用が可能です。
|
|
外観@
|
外観A
|
 |
|
|
外観B
|
外観C
|
 |
 |
|
外観D
|
庭
|
 |
 |
|
ウッドデッキ
|
駐車スペース
|
 |
 |
| 1階 洋室 |
トイレ
|
 |
|
| ロフト |
2階 洋室
|
 |
 |
| 2階 洋室 |
吹き抜け
|
 |
 |
| リビング |
キッチン
|
 |
 |
| リビング・キッチン |
BBQハウス(ミニログ)
|
 |
 |
| ピザ窯 |
物件南側の土地(1.239u)
|
 |
 |
| 趣味部屋(6畳) |
ブランコ
|
 |
 |
|
|
|
|
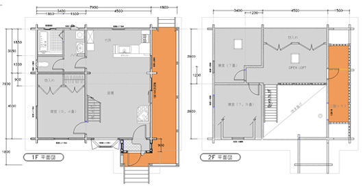
間取り図
|
|
|
※図面と現況が異なる場合は、現況を優先いたします。 |
|
|
|
| ■物件概要 |
|
住 所
|
小諸市大久保 |
|
価 格
|
2,900万円 |
|
間取り
|
3LDK+オープンロフト |
|
面 積
|
土地 母屋側 227坪(752u)+374坪(1,239u)=合計602坪
建物 31.1坪(102.98u) |
|
築年月
|
平成11年3月 |
|
構 造
|
木造ルーフィング葺き2階建て |
|
地 目
|
山林 |
|
排 水
|
合併浄化槽 |
|
ガ ス
|
プロパンガス |
|
建蔽率
|
60% |
|
容積率
|
100% |
| 用途地域 |
無指定 |
|
・小諸市景観条例 一般地区 |
| 取引態様 |
専任媒介 |
|
備 考
|
・JR小海線小諸駅8.9km
・セブンイレブン8.6km
・布引観音3.2km
・ご内見希望の方は、事前にご予約下さい。
|
|
|
|