http://www.avis.ne.jp/~okura/
建物付土地情報
【佐久市根岸/ログハウス】
トップページ
土地情報
建物付土地情報
賃貸情報
大蔵不動産とは?
(会社案内/地図)
資料請求・連絡送信
佐久市について…
お問合せ
okura@avis.ne.jp
・
佐久南ICまで車約5分
、
国道沿いにあります。
ビジネス用途としてや、都市部から
の移住、別荘利用としてもお勧めです!
・
フィンランド
から輸入した材料で建てられた本格ログ構造の木のぬくもりあふれる
空間、天井の高い開放的なリビングとロフトスペースを完備!
リニューアルされた大型ウッドデッキや冬に快適な
薪ストーブも魅力です。
・
建築屋さんがオーナー様ですので、安心できる物件です♪
・事務所仕様として使われていたため、キッチンシンクが未設置ですが、その分自分
好みにカスタム可能!キッチンを設置の間取りプランも有りますので、お気軽にお問合せ下さい。
外観写真@
室内写真@
室内写真A
室内写真B
室内写真C
室内写真D
室内写真E
室内写真F
室内写真G
室内写真H
室内写真I
浴室
トイレ
洗面室
前面道路@
前面道路A
●テラスを先行して改修いたしました4/25
●桧(ひのき)
30mm
厚のスノコにしましたので高耐久仕様です
写真@
写真A
写真B
写真C
写真D
写真E
近くにある主な施設
新幹線佐久平駅 車15分
道の駅ヘルシーテラス 3.4km
穂の香乃遊2.2km
物件概要
所在地
佐久市根岸
価 格
1,900万円(税込)
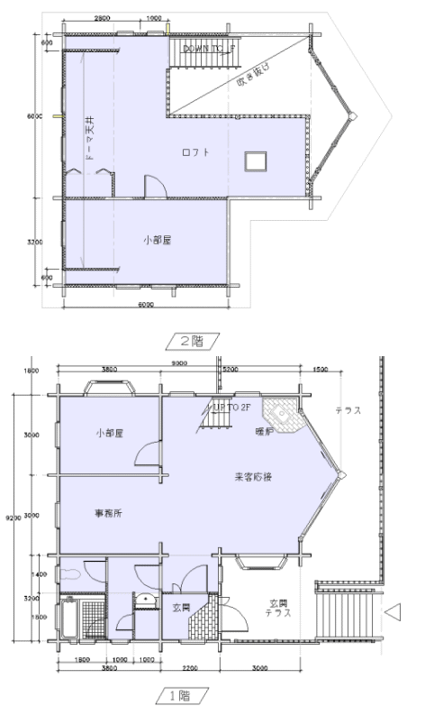
間取り
2L+ロフト
築年月
平成9年5月
構造
木造ルーフィング葺2階建て
面 積
土地:507u(153.3坪)
建物:134.4u(40.6坪)
水 道
佐久水道企業団
排 水
トイレ/簡易水洗(汲み取り) 雑排水/地下浸透
地 目
宅地
ガ ス
プロパン
交 通
JR北陸新幹線佐久平駅約8km(車16分)
用途地域
無指定
建蔽率
60%
容積率
100%
取引態様
専任媒介
備 考
・道の駅ヘルシーテラス 3.4km
・道の駅ほっとパーク浅科950m
・佐久南IC3.6km
・穂の香乃湯2.2km
・ファミリーマート1.9km
・現況有姿売買とします。
ご購入者様にご安心頂けるよう、ご希望に応じて、状況を熟知したオーナー様(建築業者様)がご購入後のメンテナンスに関するご相談やアドバイスにも対応致します。
・お風呂は未配管です
間取り
配置図
Copyright(c) 2003 大蔵不動産株式会社 All Rights Reserved